 |
| 2009_wettbewerb mehrfamilienhäuser arndtstraße dortmund
|
| |
| |
we 31
wohnfläche 2.525 m²
bruttorauminhalt 16.056 m³
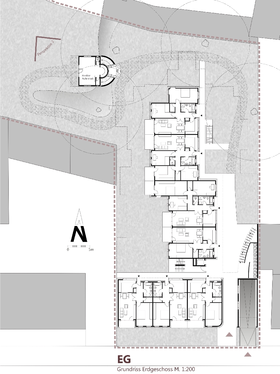
Entwurfskonzept / Leitidee
Auf Grundlage der Vorgaben kam für uns nur die Planung einer Art T-Gebäude in Frage. Die Idee basiert auf der Bildung zweier Baukörper, welche über einen
Erschließungskern miteinander verbunden sind.
Entlang der Straße entsteht an der Baugrenze der
erste Baukörper mit Satteldach und Maisonette-wohnungen im Dachgeschoss (kein Vollgeschoss). Der zweite Baukörper erstreckt sich nach hinten in den Gartenbereich und erhält oben ein zurücktretendes Staffelgeschoss (ebenfalls kein Vollgeschoss). Die Erschließung erfolgt über Laubengänge, so dass die jeweilige Breite der Baukörper komplett für die Wohnnutzung zur Verfügung steht. Mit drei Ausnahmen pro Geschoss orientieren sich alle Wohn- und Schlafräume sowie Kinderzimmer nach Süden (Straßenriegel) oder nach Westen (Gartenriegel).
Alle Küchen und Bäder sind zum Laubengang orientiert
und somit natürlich belichtet und belüftet. Einzig die
zusätzlich in die Planung miteinbezogenen Abstellräume sowie die Gäste WC´ s sind innen liegend. Zudem gibt es im Tiefgeschoss zusätzlich noch für jede Wohnung Kellerersatzräume.
Der Straßenriegel beherbergt im Erdgeschoss und in
den Obergeschossen insgesamt elf 2- Zimmer
Wohnungen und im Dachgeschoss vier 3- Zimmer-
wohnungen als Maisonette. Im Gartenriegel befinden
sich im Erdgeschoss und in den Obergeschossen
insgesamt drei 2- Zimmer, drei 3- Zimmer und sechs
4- Zimmer Wohnungen und im Staffelgeschoss zwei
2- Zimmer sowie zwei 3- Zimmer Wohnungen. So sind
insgesamt 31 Wohnungen (16 2- Zimmer, neun 3- Zimmer, sechs 4- Zimmer) entstanden, welche alle mit einem Balkon/Loggia oder einer Terrasse ausgestattet sind. Die 4 Zimmer Wohnungen haben sogar zwei Balkone.Die Außenanlagen sehen neben den bestehenden Bäumen eine großzügige Rasenbepflanzung vor.
Eine befestigte Wegführung führt durch den
Gartenbereich mit zahlreichen Sitzmöglichkeiten zu
einem kleinen Pavillon mit Dachterrasse, den die
Bewohner für gemeinschaftliche Aktivitäten nutzen
können. Hier wurde auch die runde Treppenanlage
des Bestandes wieder aufgenommen.
zurück
|
|
|
|