 |
| traffic design award 2001 fina-parkhaus dortmund |
| |
| |
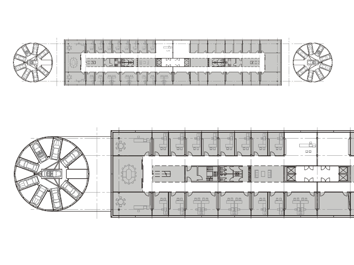
konzept
die auch heute noch aktuelle studie wurde verfasst
als beitrag zum renault-traffic-design-award.
gesucht wurden die innovativsten parkhäuser.
vor diesem hintergrund entstand die idee zur transformation
des fina-parkhauses an der kuckelke in
dortmund. die städtebaulich prägenden zylinder,
welche die rampen zu den parkebenen beinhalten
werden zur eigentlichen parkfläche. dies gelingt
durch ein automatisches parksystem, der pkw
wird im erdgeschoss auf einer palette geparkt, welche
zu einem freien platz im turm gefahren wird. Diese
parksysteme sind keine zukunftsmusik, sondern schon heute im einsatz (z.b. autostadt wolfsburg/vw).
auf anforderung gelangen die pkw wieder in die erdgeschossebene, bereit zur ausfahrt.
die nun bisher als parkebene genutzte fläche zwischen den parktürmen wird frei für verschiedenartige nutzungen. büros, gewerbeflächen, im eg cafés, einzelhandel, alles ist möglich. die bestehende stahlbetonkonstruktion kann saniert werden und erhalten bleiben.
die türme sind als seitlich offene stahlkonstruktion
geplant, sonnenschutzsegel aus drahtgeflechtelementen spenden schatten und folgen dem sonnenverlauf.
zurück
|
|
|
|