 |
| 2007_seniorenresidenz herdecke |
| |
| |
machbarkeitsstudie
konzept
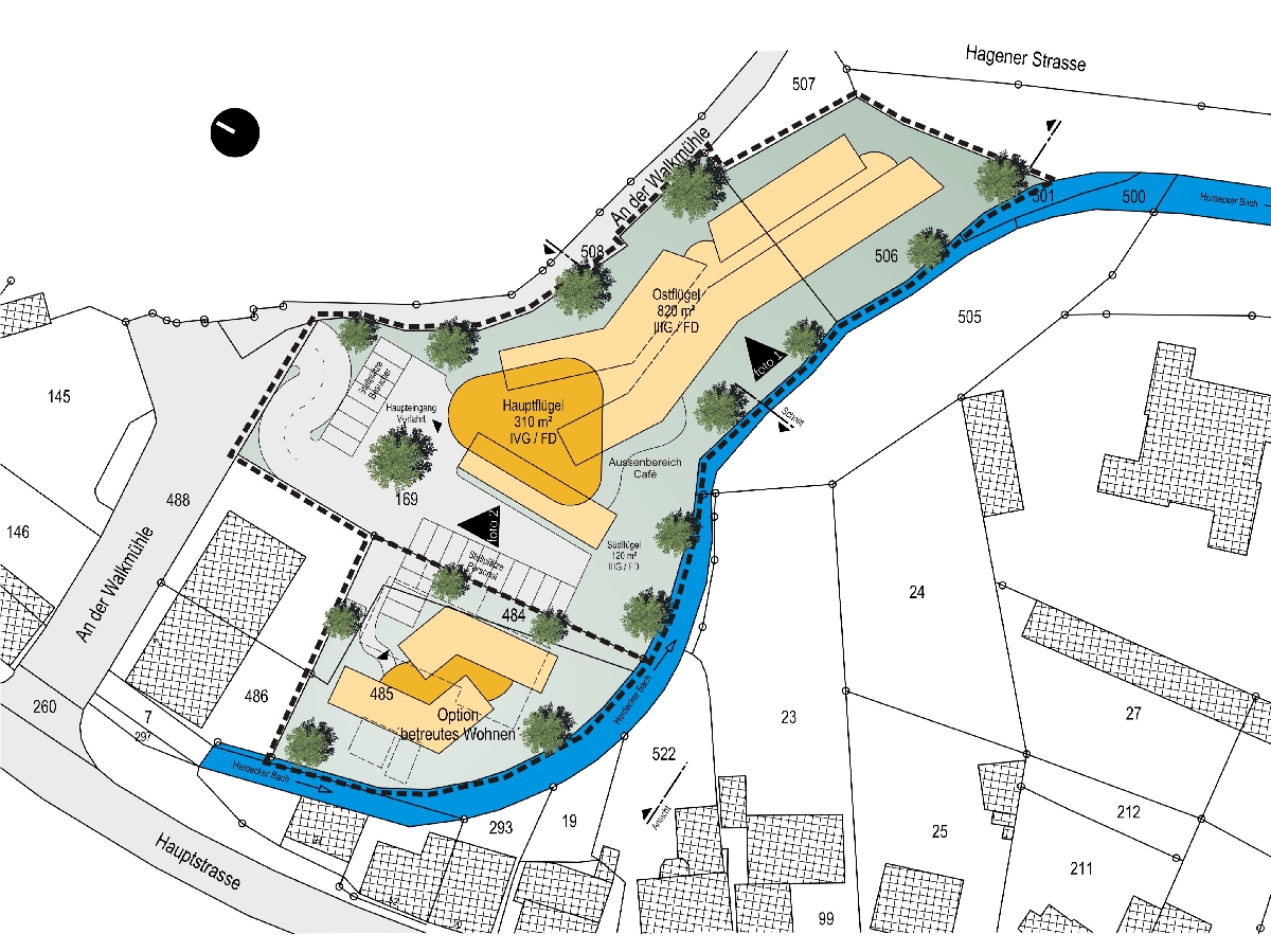
Das Grundstück am Herdecker Bach wird Standort
für eine Pflegeeinrichtung mit gehobener Ausstattung.
Der Baukörper fügt sich in die Umgebung ein und
schafft interne Verweilzonen. Diese Bereiche gliedern
das Gebäude mit Einschnitten nach außen.
|
|
zurück
|
|
|
|