 |
| 2010_dachaufstockung und energetische sanierung dortmund-berghofen |
| |
| |
wohnfläche neu 139 m²
fertigstellung 2011
konzept
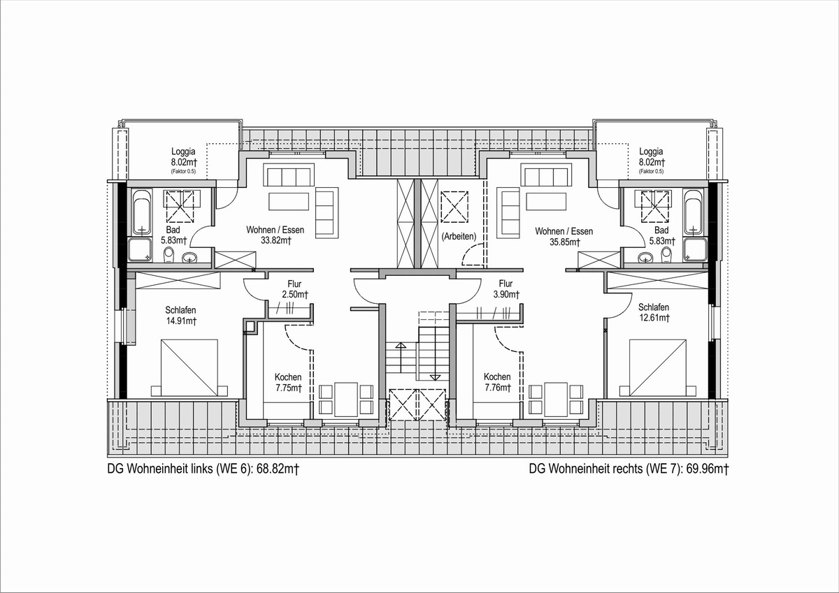
das bestehende mehrfamilienwohnhaus wurde im zuge der energetischen sanierung aufgestockt.
die energetische sanierung umfasste den austausch der fenster und der heizungsanlage, sowie die dämmung
der fassade, der kellerdecke und des neuen daches. aufgrund der flachen dachneigung des bestehenden gebäudes
konnte der dachraum bisher nur als trockenraum genutzt werden. das dach wurde komplett abgetragen und durch
eine neue dachkonstruktion mit steilerer dachneigung ersetzt. zum süden ausgerichtet befinden sich die dachterrassen
der beiden neu geschaffenen wohnungen im dachgeschoss. erzielt wurde durch die sanierung der neubaustandard gemäß enev.
|
|
zurück
|
|
|
|