 |
| 2009_anbau waltrop |
| |
| |
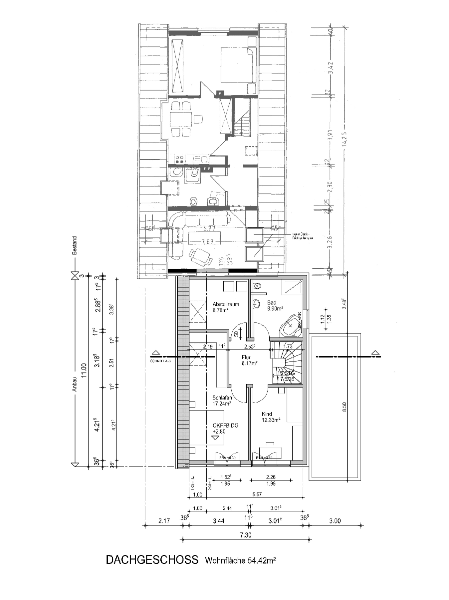
wohnfläche 139 m²
bruttorauminhalt 594 m³
fertigstellung 2010
konzept
Das vorhandene Wohnhaus wird durch einen Anbau für
eine weitere Wohnung mit eigenem eigenem Eingang
ergänzt. In Bezug auf die Geschossigkeit, Dachneigung
und Firsthöhen fügt sich der neue Gebäudeteil harmonisch
in die nähere Umgebung ein.
|
|
zurück
|
|
|
|