 |
| 2009_neubau einer kfz-werkstatthalle dortmund |
| |
| |
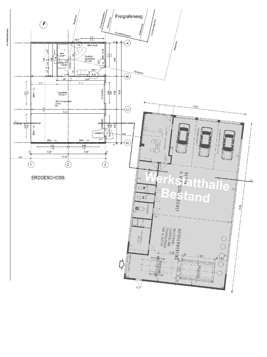
nutzfläche 156 m²
bruttorauminhalt 886 m³
fertigstellung 2010
konzept
Der bestehende Betrieb wird durch eine neue Halle
ergänzt. Ein neuer Empfangsbereich mit Ausstellung
ist Bestandteil des neuen Gebäudes.
Hauptsächlich dient die Halle der Lagerung von
Kfz-Ersatzteilen.
Der Bauantrag wurde gestellt.
|
|
zurück
|
|
|
|