 |
| 2009_einfamilienhaus dortmund-lütgendortmund |
| |
| |
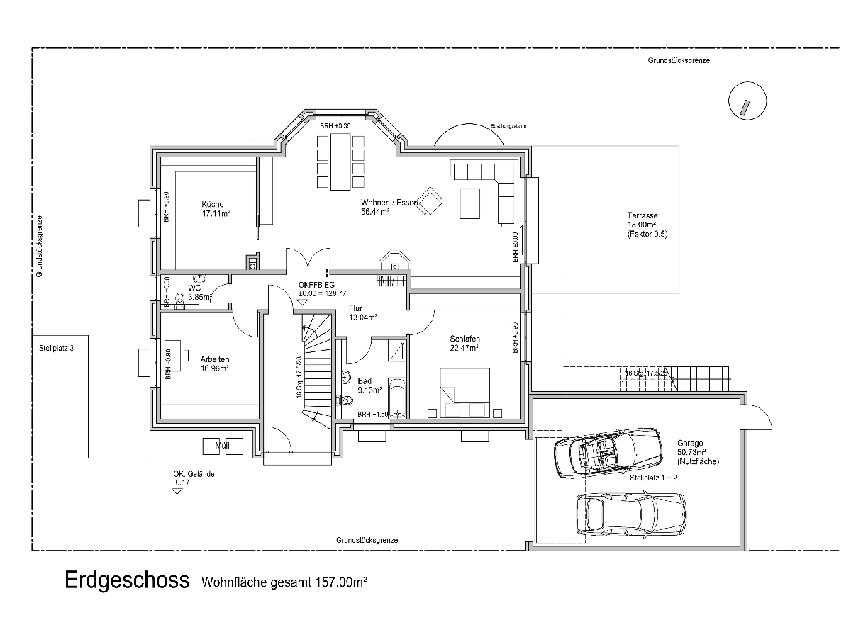
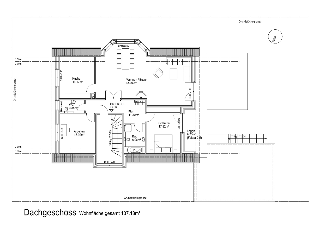
wohnfläche 365 m²
bruttorauminhalt 2.150 m³
fertigstellung 2011
konzept
Das bestehende Wohnhaus auf dem Grundstück
wurde abgebrochen, um Platz zu schaffen für ein
neues Gebäude, welches konsequent gemäß
den Wünschen des Bauherrn entwickelt wurde.
Über das an der Nordseite befindliche Treppenhaus
erreicht man die drei Ebenen des Wohnhauses.
Der Schwerpunkt der Grundrisskonzeption liegt auf den
großzügigen Wohn-/Essbereichen mit Süd-West-Aus-
richtung.
Das in konventioneller Konstruktion errichtete Haus wird mit einer Erdwärmepumpe beheizt und erreicht den Standard des KfW-Effizienzhauses 70 gemäß EnEV 2009.
|
|
zurück
|
|
|
|