 |
| 2011_einfamilienhaus mit seeblick witten |
| |
| |
wohnfläche 281 m²
baubeginn 2011
entwurf
das wohnhaus ist geplant auf einem sehr schönen grundstück in witten mit blick zum kemnader see.
der seeblick und die hanglage des grundstückes bestimmen die orientierung der einzelnen bereiche.
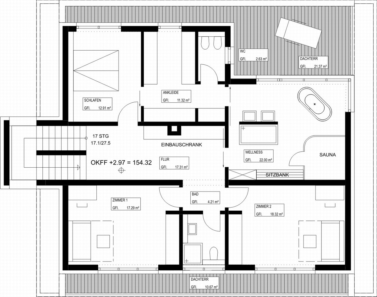
die gewählten formen und ruhigen kanten verleihen dem gebäude eine schlichte eleganz. im erdgeschoss
befinden sich der eingangsbereich, der flur mit gäste-wc und gästezimmer. der kaminbereich gliedert die
küche mit essplatz und das wohnzimmer. im obergeschoss sind die schlafräume geplant, zum elternschlafzimmer zugeordnet
ist ein ankleidebereich, von dem man in das elternbad gelangt. bauherrenwunsch und ein schönes detail ist die freistehende badewanne,
von der man aus den blick zum kemnader see herunter geniessen kann.
durch den einsatz einer erdwärmepumpe, einer kompakten bauweise und der vermeidung von wärmebrücken, wird der standard eines kfw-effizienzhauses 70 erreicht.
der energieverbrauch liegt somit weit unter den gesetzlichen vorgaben durch die enev 2009.
|
|
zurück
|
|
|
|